Nieuw in verkoop:Dorpstraat 104, 6176 AE Spaubeek - Foto
Nieuw in verkoop
+32

Dorpstraat 104 6176 AE Spaubeek € 349.000,- k.k.

  • Woonhuis
  • 4 kamers
  • 3 slaapkamers
  • 1 badkamers
  • Bouwjaar 1938
  • 595 m² perceeloppervlakte
  • 111 m² gebruiksoppervlakte
  • E Energielabel E

Beschrijving

Omschrijving:
In Spaubeek ligt deze karakteristieke, vrijstaande jaren 30-woning met prachtig, vrij uitzicht aan de achterzijde.

Ligging:
Spaubeek (Sjpaubik) behoort na de gemeentelijke herindeling sinds 1982 onder het bestuur van de gemeente Beek en heeft circa 3.345 inwoners (2021). Het dorp ligt in het Geleenbeekdal tegen de helling van het plateau van Schimmert.
Uitvalswegen zijn makkelijk bereikbaar. De A76 (richting Eindhoven, Heerlen/ Aken en België) met een afslag Spaubeek loopt langs de noordwestkant van het dorp. Tevens heeft Spaubeek een eigen treinstation. Aan de overkant daarvan ligt het Stammenderbos, onderdeel van het natuurgebied Geleenbeekdal. Een wandeling naar Gasterij Kasteel Terborgh is aan te bevelen.
Dagelijkse voorzieningen zoals huisarts, fysio en een kleine buurtsuper zijn aanwezig in het dorp, alsook Kindcentrum Eigen-Wijs dat bestaat uit een basisschool, kinderopvang en buitenschoolse opvang.

De woning in het kort:
* bouwjaar 1938
* perceeloppervlakte ca. 595 m2
* woonoppervlakte ca. m2
* zeer royale, zonnige tuin

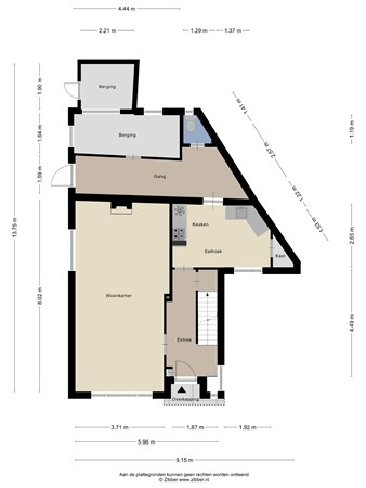
Indeling:

Souterrain:
Kelderruimte die middels een koekoek geventileerd kan worden, ideaal om uw provisie op te slaan.

Begane grond:
Entree met vernieuwde meterkast, opgaande trap, toegang tot de woonkamer en toegang tot de keuken.
De woonkamer heeft een mooie raampartij aan de voorzijde en in de zijgevel. Tijdens het vervangen van de kozijnen is de traditionele vlakverdeling behouden gebleven. De woonkamer is voorzien van een parketvloer en een haard.
De gesloten keuken is opgesteld in twee delen: het linkerdeel is bedoeld om te koken en voorzien van een koelkast, oven, gaskookplaat en afzuigkap. Het rechterdeel is het spoelgedeelte. Er is voldoende opbergruimte.
Naast de keuken aan de rechterzijde bevindt zich een praktisch bruikbare muurkast.
Vanuit de keuken bereikt men een tussenportaal, dit geeft toegang tot een ruime berging, de toiletruimte en de tuin. De toiletruimte is eenvoudig te noemen. De mogelijkheid bestaat om dit deel van de woning bij de leefruimtes te trekken waardoor er meer woonoppervlakte ontstaat.
In de tuin bevindt zich aan de achterzijde van de woning een berging om uw groencontainer en tuingereedschao op te bergen.
De royale tuin die op het oosten ligt is verzorgd en zonnig te noemen, vanaf het terras is er een mooi vrij uitzicht op de achterliggende landerijen. De tuin is tevens te bereiken middels de oprit aan de linkerzijde van de woning. De oprit biedt parkeerruimte voor twee auto's en in de straat is voldoende vergunningsvrije parkeergelegenheid.

1e verdieping:
De overloop geeft toegang tot drie slaapkamers en de badkamer. De slaapkamers en overloop zijn voorzien van een vloerbedekking.
Slaapkamer 1 is gelegen aan de voorzijde van de woning en ca. 13 m2 groot. Slaapkamer 2 ligt aan de achterzijde en ca.13 m2 groot. Slaapkamer 3 is aan de voorzijde gelegen en ca. 7 m2 groot. Alle slaapkamers zijn voorzien van aluminium kozijnen met dubbele beglazing en rolluiken.
De ruime badkamer is uitgerust met een douchecabine, wastafelmeubel met wastafel en tweede toilet. Tevens bevindt zich hier de aansluiting voor de wasmachine.

2e verdieping:
Middels een vlizotrap vanuit de badkamer bereikt men de tweede verdieping. De zolder is momenteel in gebruik als bergzolder, het realiseren van een vierde slaapkamer behoort tot de mogelijkheden. Tevens is op de zolder de standplaats van de cv-installatie, het betreft een huurtoestel via Volta (AWB Elegance, 2017), koper zal de huur voortzetten.

Aanvaarding in onderling overleg.

VERDERE INFORMATIE

Disclaimer:
Deze presentatie is zo zorgvuldig mogelijk opgesteld, wijzigingen zijn voorbehouden, aangegeven maten zijn bij benadering. Aan deze presentatie kunnen dan ook geen rechten worden ontleend.

Schriftelijkheidsvereiste:
Ter bescherming van de belangen van zowel koper als verkoper, wordt uitdrukkelijk gesteld dat een koopovereenkomst met betrekking tot deze onroerende zaak eerst dan tot stand komt nadat koper en verkoper de koopovereenkomst hebben getekend.

Ontbinding:
De termijn die wordt opgenomen voor eventuele (overeengekomen) ontbindende voorwaarden (bijv. financieringsvoorbehoud) is in de regel 4 tot 6 weken na het sluiten van de mondelinge wilsovereenkomst.

Waarborgsom:
De waarborgsom/bankgarantie is 10% van de koopsom. De koper dient deze binnen 2 weken ná het vervallen van de ontbindende voorwaarden bij de desbetreffende notaris te deponeren.

Onderzoeksplicht van de koper:
Koper is te allen tijde gerechtigd voor eigen rekening een bouwkundige keuring te laten verrichten dan wel andere adviseurs te raadplegen teneinde een goed inzicht te verkrijgen over de staat van onderhoud.

Informatie:
Thewissen Makelaardij
Jos en Karin Thewissen
Proostenhof 17 Meerssen
06-38143402
info@thewissenmakelaardij.nl

Kaart

Kenmerken

Overdracht

Referentienummer
100
Vraagprijs
€ 349.000,- k.k.
Status
Nieuw in verkoop
Aanvaarding
In overleg
Aangeboden sinds
Dinsdag 27 januari 2026
Laatste wijziging
Maandag 2 februari 2026

Bouw

Type object
Woonhuis, eengezinswoning, vrijstaande woning
Soort bouw
Bestaande bouw
Bouwperiode
1938
Dakbedekking
Dakpannen
Type dak
Zadeldak
Keurmerken
Bouwkundige keuring
Isolatievormen
Grotendeels dubbel glas

Oppervlaktes en inhoud

Perceeloppervlakte
595 m²
Woonoppervlakte
111 m²
Woonkameroppervlakte
22,33 m²
Keukenoppervlakte
10,71 m²
Inhoud
601 m³
Oppervlakte overige inpandige ruimten
51 m²
Oppervlakte gebouwgebonden buitenruimte
1 m²

Indeling

Aantal bouwlagen
3 (en 1 kelder)
Aantal kamers
4 (waarvan 3 slaapkamers)
Aantal badkamers
1 (en 1 apart toilet)

Locatie

Ligging
Dichtbij openbaar vervoer
Vrij uitzicht

Tuin

Type
Achtertuin
Hoofdtuin
Ja
Oriëntering
Oosten
Heeft een achterom
Ja
Staat
Normaal
Tuin 2 - Type
Zijtuin
Tuin 2 - Oriëntering
West

Energieverbruik

Energielabel
E

CV ketel

CV ketel
AWB Elegance
Warmtebron
Gas
Bouwjaar
2017
Combiketel
Ja
Eigendom
Huur

Uitrusting

Aantal parkeerplaatsen
2
Warm water
CV-ketel
Verwarmingssysteem
Centrale verwarming
Ventilatie methode
Natuurlijke ventilatie
Keukenvoorzieningen
Inbouwapparatuur
Badkamervoorzieningen
Douche
Toilet
Wasmachineaansluiting
Wastafel
Wastafelmeubel
Heeft kabel-tv
Ja
Heeft een rookkanaal
Ja
Glasvezelaansluiting aanwezig
Ja
Tuin aanwezig
Ja
Heeft rolluiken
Ja
Heeft schuur/berging
Ja

Kadastrale gegevens

Kadastrale aanduiding
Beek N 43
Perceeloppervlakte
595 m²
Omvang
Geheel perceel
Eigendomsituatie
Eigen grond