Nieuw in verkoop:Gasthuisstraat 161, 6231 JV Meerssen - Foto
Nieuw in verkoop
+35

Gasthuisstraat 161 6231 JV Meerssen € 799.000,- k.k.

  • Woonhuis
  • 4 kamers
  • 3 slaapkamers
  • 1 badkamers
  • Bouwjaar 2002
  • 443 m² perceeloppervlakte
  • 340 m² gebruiksoppervlakte
  • A Energielabel A

Beschrijving

Omschrijving:
Achter deze moderne gevel in het centrum van Meerssen gaat een verrassend ruime woning schuil met onder meer drie slaapkamers, riante woonkamer met kantoorruimte, inpandige garage, multifunctionele ruimte met zwembad en sauna en op het noord-west gelegen tuin met overkapping. Kom gerust een kijkje nemen om de mogelijkheden van deze woning met eigen ogen te zien!

Typering:
De woning is gelegen in het centrum van Meerssen. In de directe nabijheid zijn diverse winkel- en sportvoorzieningen voorhanden. De sfeervolle Markt met meer dan voldoende horecagelegenheden ligt op loopafstand, alsook de plaatselijke basisschool. Tevens is er een school voor voortgezet onderwijs in Meerssen. Daarnaast biedt Meerssen een rijk verenigingsleven. Diverse natuur- en wandelgebieden liggen in de directe omgeving.
De bereikbaarheid van de op- en afritten van de autosnelwegen A2 (Eindhoven/Luik) en A79 (Maastricht/Heerlen-Aken) is uitstekend te noemen. Meerssen ligt op ca. 6 kilometer van het centrum van Maastricht.
Door middel van trein- en busverbindingen is Maastricht derhalve goed bereikbaar. Het station ligt op loopafstand en de dichtsbijzijnde bushalte ligt iets verderop in de straat.

De woning in het kort:
* bouwjaar 2002
* perceeloppervlakte 443m2
* woonoppervlakte 340m2
* in het centrum gelegen
* 16 zonnepanelen in eigendom
* ruime, inpandige garage
* zeer riante multifunctionle ruimte met inpandig zwembad, sauna en bar
* energielabel A+ (geldig tot 03-11-2035)

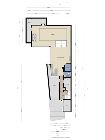
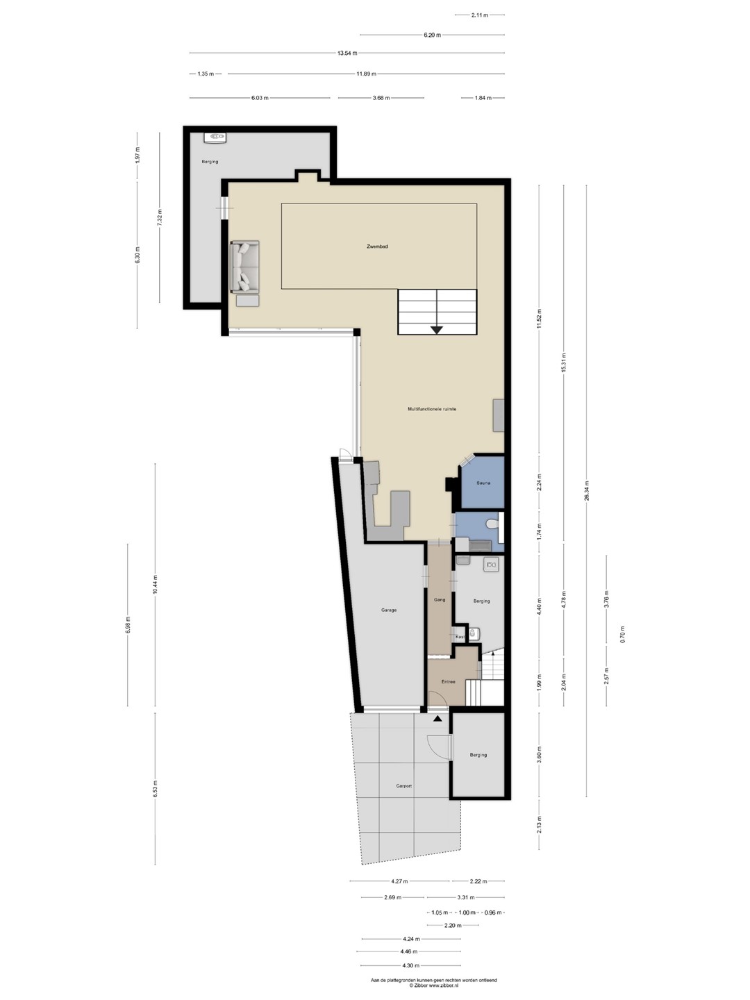
Indeling:

Begane grond:
De entree met garderobe geeft toegang tot de achtergelegen gang en de mooie trapopgang naar de eerste verdieping. De gang geeft toegang tot de inpandige garage, meterkast, wasruimte/berging en de multifunctionele ruimte. De garage is ruim te noemen en voorzien van een elektrisch bedienbare sectionaal poort. Een auto kan makkelijk binnen geparkeerd worden, een tweede auto kan eventueel op de overdekte oprit aan de voorzijde van de woning.
Via de achterzijde van de garage is de knusse patiote bereiken. Deze patio is tevens te bereiken via de twee schuifpuien van de multifunctionele ruimte. De wasruimte/berging bevindt zich deels onder de trap naar de eerste verdieping. U vindt in deze ruimte de aansluitingen voor het witgoed, de cv-installatie (Nefit, eigendom) en meer dan voldoende opbergruimte.
De multifunctionele ruimte is riant te noemen. U vindt hier een volledig betegelde toiletruimte met vrijhangend closet en wastafel, een sauna, een bar en een inpandig zwembad. Momenteel is de ruimte in gebruik als sportruimte. Bij goed weer kan de patio bij deze ruimte getrokken worden door het openen van de twee schuifpuien die elk uit drie delen bestaat. De multifunctionele ruimte is uitgerust met vloerverwarming.

1e verdieping:
In de gang bevinden zich een geheel betegelde toiletruimte met vrijhangend closet en fonteintje en een aparte berging met aan weerszijden een glazen taatsdeur die beiden toegang geven tot de riante leefruimte. Deze ruimte van maar liefst 16 meter lang heeft meerdere functies: aan de voorzijde is de woonkamer gesitueerd. Deze heeft een mooie lichtinval door de grote glazen pui aan de voorzijde welke een mooi uitzicht geeft over de voorgelegen straat. Aan de voorzijde is een deel van de woonkamer ingericht als thuiswerkplek/kantoor.
In het middengedeelte van de leefruimte is het heerlijk vertoeven voor de gashaard. Er is extra lichtinval gecreëerd door de twee smalle lichtkoepels.
in het achterste deel van de leefruimte is de eetkamer en de keuken gesitueerd. Door het open karakter van de keuken is er direct contact met de eetkamer. Ook hier is veel daglichttoetreding: in de achtergevel is veel glas verwerkt middels een grote schuifpui en deur naar het terras.
De keuken in u-opstelling is voorzien van een gaskookplaat, vaatwasser, combimagnetron, vrijstaande koel/vries combinatie en meer dan voldoende opbergruimte. Met uitzondering van de keuken is de leefruimte voorzien van een parketvloer.
Vanuit de eetkamer en de keuken is het terras met overkapping en buitenkeuken te bereiken. Achter het terras bevindt zich de ruime, op het noord-west gelegen tuin die onderhoudsvriendelijk is aangelegd. In de hoek van de tuin is een trap naar beneden om in de patio te geraken.

2e verdieping:
De overloop geeft toegang tot drie slaapkamers en de ruime badkamer. Slaapkamer 1 is gelegen aan de voorzijde van de woning en ca. 23 m2 groot. Deze kamer is voorzien van vloerbedekking en een vaste kastenwand. Slaapkamer 2 ligt aan de achterzijde en is ca. 12 m2 groot. Deze kamer is voorzien van een laminaatvloer. Slaapkamer 3 is tevens aan de achterzijde gelegen en is ca. 11 m2 groot. Deze slaapkamer is voorzien van vloerbedekking. Alle slaapkamers zijn verder voorzien van aluminium kozijnen met dubbele beglazing en airconditioning.
De badkamer is keurig afgewerkt en voorzien van een inloopdouche met massagefunctie, tweede toilet, wastafelmeubel met wastafel, radiator en praktische waskoker: uw was komt rechtstreeks in de wasruimte uit.

Op het dak liggen 16 zonnepanelen in eigendom.

Aanvaarding in onderling overleg.

VERDERE INFORMATIE

Disclaimer:
Deze presentatie is zo zorgvuldig mogelijk opgesteld, wijzigingen zijn voorbehouden, aangegeven maten zijn bij benadering. Aan deze presentatie kunnen dan ook geen rechten worden ontleend.

Schriftelijkheidsvereiste:
Ter bescherming van de belangen van zowel koper als verkoper, wordt uitdrukkelijk gesteld dat een koopovereenkomst met betrekking tot deze onroerende zaak eerst dan tot stand komt nadat koper en verkoper de koopovereenkomst hebben getekend.

Ontbinding:
De termijn die wordt opgenomen voor eventuele (overeengekomen) ontbindende voorwaarden (bijv. financieringsvoorbehoud) is in de regel 4 tot 6 weken na het sluiten van de mondelinge wilsovereenkomst.

Waarborgsom:
De waarborgsom/bankgarantie is 10% van de koopsom. De koper dient deze binnen 2 weken ná het vervallen van de ontbindende voorwaarden bij de desbetreffende notaris te deponeren.

Onderzoeksplicht van de koper:
Koper is te allen tijde gerechtigd voor eigen rekening een bouwkundige keuring te laten verrichten dan wel andere adviseurs te raadplegen teneinde een goed inzicht te verkrijgen over de staat van onderhoud.

Informatie:
Thewissen Makelaardij
Jos en Karin Thewissen
Proostenhof 17 Meerssen
06-38143402
info@thewissenmakelaardij.nl

Kaart

Kenmerken

Overdracht

Referentienummer
101
Vraagprijs
€ 799.000,- k.k.
Status
Nieuw in verkoop
Aanvaarding
In overleg
Aangeboden sinds
Dinsdag 3 februari 2026

Bouw

Type object
Woonhuis, eengezinswoning, vrijstaande woning
Soort bouw
Bestaande bouw
Bouwperiode
2002
Dakbedekking
Bitumen
Type dak
Platdak
Isolatievormen
Volledig geïsoleerd

Oppervlaktes en inhoud

Perceeloppervlakte
443 m²
Woonoppervlakte
340 m²
Woonkameroppervlakte
43,21 m²
Keukenoppervlakte
25,97 m²
Inhoud
1.381 m³
Oppervlakte overige inpandige ruimten
32 m²
Oppervlakte gebouwgebonden buitenruimte
50 m²

Indeling

Aantal bouwlagen
3
Aantal kamers
4 (waarvan 3 slaapkamers)
Aantal badkamers
1 (en 2 aparte toiletten)

Locatie

Ligging
Dichtbij openbaar vervoer
In centrum
Nabij school

Tuin

Type
Achtertuin
Hoofdtuin
Ja
Oriëntering
Noord west
Heeft een achterom
Ja
Staat
Normaal
Tuin 2 - Type
Patio
Tuin 2 - Oriëntering
Zuid-west
Tuin 2 - Staat
Normaal

Energieverbruik

Energielabel
A

CV ketel

CV ketel
Nefit
Warmtebron
Gas
Combiketel
Ja
Eigendom
Eigendom

Uitrusting

Aantal parkeerplaatsen
2
Aantal overdekte parkeerplaatsen
2
Warm water
CV-ketel
Verwarmingssysteem
Airconditioning
Centrale verwarming
Gashaard
Vloerverwarming (gedeeltelijk)
Ventilatie methode
Mechanische ventilatie
Keukenvoorzieningen
Inbouwapparatuur
Badkamervoorzieningen
Inloopdouche
Toilet
Wastafel
Wastafelmeubel
Parkeergelegenheid
Inpandige garage
Heeft airco
Ja
Heeft een alarm
Ja
Heeft kabel-tv
Ja
Glasvezelaansluiting aanwezig
Ja
Tuin aanwezig
Ja
Heeft een garage
Ja
Beschikt over een internetverbinding
Ja
Heeft een sauna
Ja
Heeft een schuifpui
Ja
Heeft zonnepanelen
Ja
Heeft een zwembad
Ja
Heeft ventilatie
Ja

Kadastrale gegevens

Kadastrale aanduiding
Meerssen E 1214
Perceeloppervlakte
10 m²
Omvang
Geheel perceel
Eigendomsituatie
Eigendom belast met opstal
Kadastrale aanduiding
Meerssen E 1037
Perceeloppervlakte
195 m²
Omvang
Geheel perceel
Eigendomsituatie
Eigen grond
Kadastrale aanduiding
Meerssen E 1216
Perceeloppervlakte
79 m²
Omvang
Geheel perceel
Eigendomsituatie
Eigen grond
Kadastrale aanduiding
Meerssen E 1238
Perceeloppervlakte
150 m²
Omvang
Geheel perceel
Eigendomsituatie
Eigen grond
Kadastrale aanduiding
Meerssen E 1278
Perceeloppervlakte
9 m²
Omvang
Geheel perceel
Eigendomsituatie
Eigen grond