Nieuw in verkoop:André Severinweg 20, 6214 PM Maastricht - Foto
Nieuw in verkoop
+34

André Severinweg 20 6214 PM Maastricht € 289.000,- k.k.

  • Woonhuis
  • 3 kamers
  • 2 slaapkamers
  • 1 badkamer
  • Bouwjaar 1906
  • 114 m² perceeloppervlakte
  • 114 m² gebruiksoppervlakte
  • E Energielabel E

Beschrijving

Ligging
Deze hoekwoning is gelegen aan een rustige straat in het stadsdeel Mariaberg nabij het historische stadscentrum van Maastricht. Alle dagelijkse voorzieningen, zoals supermarkten, scholen en openbaar vervoer, zijn op loopafstand gelegen.
Ook de bereikbaarheid is goed te noemen, met diverse uitvalswegen in de nabijheid die zorgen voor een snelle verbinding richting omliggende steden en snelwegen.

De woning in het kort:
• Bouwjaar 1906
• Perceelgrootte 114 m2
• Inhoud woning circa 459 m3
• Woonoppervlak circa 114 m2
• Ruime garage
• Deels gerenoveerd (plafond woonkamer, stucwerk woonkamer en gang)
• Naar eigen smaak verder te renoveren

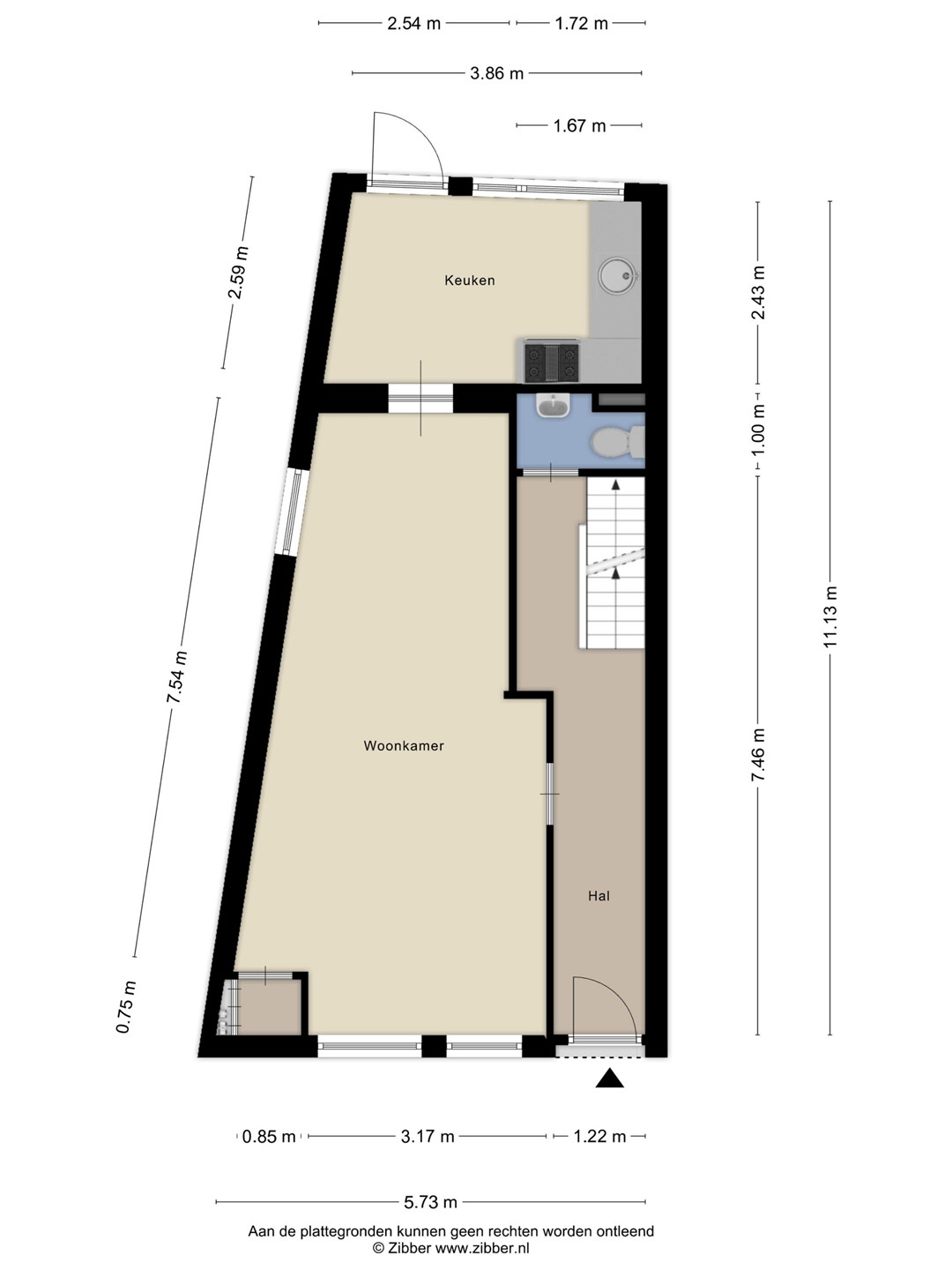
Indeling:
Souterrain:
Kelderruimte die als opslagruimte gebruikt kan worden.

Begane grond:
In de hal bevindt zich de toegang naar de kelder, het toilet, de trapopgang naar de eerste verdieping en de toegang tot de woonkamer. Door de grote raampartijen in zowel de voorgevel als de zijgevel van de woning ontstaat er een mooie lichtinval. Het plafond in de woonkamer is vernieuwd en alle wanden zijn voorzien van nieuw stucwerk. De oude vloerbedekking is gemakshalve al verwijderd.
De eenvoudige keuken ligt aan de achterzijde van de woning.
De tuin die op het noorden ligt, is te bereiken door de keukendeur of middels de handige achterom, u hoeft met de groencontainer of de fiets nooit door uw woning heen.
De tuin geeft toegang tot de riante garage met elektrisch bedienbare poort.

Eerste verdieping:
De overloop is voorzien van laminaat en geeft toegang tot twee slaapkamers, de badkamer en de trap naar de zolder.
De slaapkamers zijn voorzien van een laminaatvloer en houten kozijnen met dubbele beglazing en rolluiken.

De eerste slaapkamer bevindt zich aan de voorzijde van de woning en is ca. 10 m2. De tweede slaapkamer is ca. 9 m2 en bevindt zich aan de achterzijde van de woning. De ruime badkamer van ca. 6 m2 is deels betegeld en voorzien van bad, wastafelmeubel en aansluiting voor het witgoed.

Tweede verdieping:
De zolder is te bereiken middels een vaste trap vanaf de overloop op de eerste verdieping. Het realiseren van een ruime, derde slaapkamer behoort tot de mogelijkheden. Het dak is recent van binnenuit nageïsoleerd. Tevens is op de zolder de stelplaats van de cv-installatie (Atag, 20213, huur via Feenstra, koper zal de huur voortzetten)

Energielabel E, geldig tot 25-08-2035

Aanvaarding in overleg

VERDERE INFORMATIE

De Vragenlijst en de Lijst van Zaken zijn niet van toepassing, aangezien de woning wordt verkocht met een niet-zelfbewoningsclausule. Verkoper heeft de woning zelf niet bewoond en kan derhalve koper niet informeren over eigenschappen en/of gebreken waarvan hij niet op de hoogte is.

Disclaimer:
Deze presentatie is zo zorgvuldig mogelijk opgesteld, wijzigingen zijn voorbehouden, aangegeven maten zijn bij benadering. Aan deze presentatie kunnen dan ook geen rechten worden ontleend.

Schriftelijkheidsvereiste:
Ter bescherming van de belangen van zowel koper als verkoper, wordt uitdrukkelijk gesteld dat een koopovereenkomst met betrekking tot deze onroerende zaak eerst dan tot stand komt nadat koper en verkoper de koopovereenkomst hebben getekend.

Ontbinding:
De termijn die wordt opgenomen voor eventuele (overeengekomen) ontbindende voorwaarden (bijv. financieringsvoorbehoud) is in de regel 4 tot 6 weken na het sluiten van de mondelinge wilsovereenkomst.

Waarborgsom:
De waarborgsom/bankgarantie is 10% van de koopsom. De koper dient deze binnen 2 weken ná het vervallen van de ontbindende voorwaarden bij de desbetreffende notaris te deponeren.

Onderzoeksplicht van de koper:
Koper is te allen tijde gerechtigd voor eigen rekening een bouwkundige keuring te laten verrichten dan wel andere adviseurs te raadplegen teneinde een goed inzicht te verkrijgen over de staat van onderhoud.

Informatie:
Thewissen Makelaardij
Jos en Karin Thewissen
Proostenhof 17 Meerssen
06-38143402
info@thewissenmakelaardij.nl

Kaart

Kenmerken

Overdracht

Referentienummer
105
Vraagprijs
€ 289.000,- k.k.
Inrichting
Niet gestoffeerd
Inrichting
Niet gemeubileerd
Status
Nieuw in verkoop
Aanvaarding
In overleg
Aangeboden sinds
Vrijdag 17 april 2026

Bouw

Type object
Woonhuis, eengezinswoning, hoekwoning
Soort bouw
Bestaande bouw
Bouwperiode
1906
Dakbedekking
Bitumen
Dakpannen
Type dak
Zadeldak
Isolatievormen
Dakisolatie
Gedeeltelijk dubbel glas

Oppervlaktes en inhoud

Perceeloppervlakte
114 m²
Woonoppervlakte
114 m²
Woonkameroppervlakte
23,9 m²
Keukenoppervlakte
9,69 m²
Inhoud
459 m³
Oppervlakte overige inpandige ruimten
15 m²
Oppervlakte externe bergruimte
28 m²

Indeling

Aantal bouwlagen
3 (en 1 kelder)
Aantal kamers
3 (waarvan 2 slaapkamers)
Aantal badkamers
1 (en 1 apart toilet)

Locatie

Ligging
Aan rustige weg
Dichtbij openbaar vervoer
In woonwijk
Nabij school

Tuin

Type
Achtertuin
Hoofdtuin
Ja
Oriëntering
Noorden
Heeft een achterom
Ja
Staat
Normaal

Energieverbruik

Energielabel
E

CV ketel

CV ketel
Atag
Warmtebron
Gas
Bouwjaar
2013
Combiketel
Ja
Eigendom
Huur

Uitrusting

Aantal parkeerplaatsen
1
Aantal overdekte parkeerplaatsen
1
Warm water
CV-ketel
Verwarmingssysteem
Centrale verwarming
Badkamervoorzieningen
Ligbad
Wasmachineaansluiting
Wastafel
Wastafelmeubel
Parkeergelegenheid
Vrijstaande stenen garage
Tuin aanwezig
Ja
Heeft een garage
Ja
Beschikt over een internetverbinding
Ja
Heeft rolluiken
Ja
Heeft een dakraam
Ja

Kadastrale gegevens

Kadastrale aanduiding
Maastricht D 1500
Perceeloppervlakte
114 m²
Omvang
Geheel perceel
Eigendomsituatie
Eigen grond